Производство промышленных водогрейных и паровых котлов

Котлы и котельное оборудование в Нарьян-Маре

Изготовление котлов и котельного оборудования одна из востребованных отраслей энергомашиностроения. Это связано с тем, что строительство жилых зданий и сооружений, промышленных предприятий увеличивается, происходит необходимость реконструкций и обновления оборудования старых котельных, строительство новых котельных. Котлы и котельно вспомогательное оборудование изготавливают как крупные котельные заводы, так и небольшие котлостроительные компании.

Котел КВм с топкой ТШПМ 2.0 МВт

Производство котлов и котельного оборудования постоянно развивается по основным направлениям это повышение КПД, снижение металлоемкости за счет использования новейших материалов в производстве котлов, применение современных систем золоулавливания и установок для очистки дымовых газов, применение новых технологий сжигания топлива, снижающих выбросы загрязняющих веществ в атмосферу.

Водогрейные и паровые котлы эксплуатируются на различных видах топлива это твердое, жидкое и газообразное. Угольные котлы КВр в качестве основного вида топлива применяют уголь, а когда отопительная котельная работает не на полную мощность, в качестве резервного вида топлива применяют дрова. Для этого производится конструктивная доработка для сжигания дров. В базовых моделях угольных котлов выполняется дополнительная загрузочная дверка.

Жаротрубные водогрейные котлы могут работать как в паровом, так и в водогрейном режиме, для перевода парового котла в водогрейный режим необходимо произвести изменения в обвязку котла.

Газовый котел отопления промышленный

В газифицированных регионах наиболее востребованы котлы отопления на газообразном топливе. Эти котлы и котельное оборудование являются самыми экономически выгодными, так как природный газ дешевый, нет необходимости устраивать системы подачи топлива и удаления золы и шлака. Газ является самым экологически чистым топливом, выбросы в атмосферу вредных веществ минимальны. Газовые агрегаты при комплектации определенного вида горелок могут работать и на резервном топливе, дизеле.

Если объект расположен недалеко от торфяных разработок, то применяют котлоагрегаты, работающие на торфе. Особенно востребованы котлы, работающие на отходах различных предприятий.

В деревообрабатывающем производстве, отходы в виде опилок, стружки и щепы применяются в специально изготовленных котлах для этого вида топлива. Производственные котлы и котельное оборудование, применяющие в качестве топлива отходы очистки сельскохозяйственных культур, с успехом применяются в аграрных регионах.

Промышленные котлы и котельное оборудование, устанавливаются в модульных котельных. Такие котельные состоят из транспортабельных блоков, которые на месте монтируются в сооружение. Модульные котельные установки имеют оптимальный подбор для оснащения котельной.

Промышленные котлы и котельно вспомогательное оборудование

Промышленные котлы и котельное оборудование состоят из основного и вспомогательного оборудования. Котельный блок, каркас, топка, конвективный пакет, теплоизоляция, обмуровка, обшивка и арматура - это основное оборудование. Вспомогательное оборудование это системы топливоподачи и золошлакоудаления, газоходы и дымовые трубы, газогорелочные устройства, автоматика котельной, золоулавливающие аппараты, мазутное хозяйство, газорегуляторные установки.

Наш завод осуществляет производство котлов и котельного оборудования. Широкий модельный ряд включает водогрейные и паровые котлы на различных видах топлива и все необходимое оборудование для исправной работы котла - транспортеры топливоподачи и золоудаления, золоуловители и циклоны, насосы, дымососы, горелки, автоматика, скиповые подъемники, водоподготовка и многое другое. 

Промышленные котлы изготавливаются различной конструкции и под определенные цели.

Водогрейные котлы

Водогрейные водотрубные котлы используются для отопления и горячего водоснабжения промышленных помещений и производственных зданий. Отопительные котлы нагревают воду до 95 - 115 °С с рабочим давлением 0.3 - 0.6 МПа. 

Степень автоматизации Вид топки Вид топлива
Ручная Колосниковая Уголь
ОУР Уголь, дрова
Подовая Древесные отходы - дрова, доски, поленья, ДСП, опилки, щепа, кора, стружка и др.
Полумеханическая РПК Уголь
ЗП РПК Уголь
Механическая ТШПМ Уголь
ТЛПХ Уголь
Автоматическая Ретортная Уголь, пеллеты
Вихревая Опилки, щепа, стружка, кора (в ручном режиме - дрова и крупногабаритные отходы)
Наддувная горелка Газ, дизель, мазут, отработка

Промышленный котел КВр-0.15 К

Котлы на угле с колосниками марки КВр для твердотопливных котельных, работают на каменном и буром угле мощностью от 0.15 до 2.5 МВт. Топливо в топку водяного котла загружается вручную через загрузочную дверку, расположенную на фронте котла. Топливо укладывается на чугунные колосники слоем не более 200 мм, где происходит его горение. Воздух на горение подается дутьевым вентилятором под колосники. Под колосниками расположен зольный короб. Зола и шлак выгребается вручную.

Котлы на дровах изготавливаются с колосниковой топкой или топкой ОУР мощностью от 0.15 до 1.5 МВт. Водонагревательный котел выполнен с двумя загрузочными дверками, расположенными одна под другой. Топливо забрасывается через верхнюю загрузочную дверцу на колосниковую решетку. Воздух на горение поступает через отверстия на колосниках с помощью вентилятора поддува. Зола выгребается вручную из зольного короба.

Топка ОУР с водяными колосниками изготавливается из труб, по которым проходит вода. В межтрубное пространство ввариваются полосы металла с небольшими отверстиями. Благодаря небольшим отверстиям топливо не проваливается в зольник, а находится в топке до полного прогорания. Для равномерной подачи воздуха в слой топлива, отверстия расположены по всей площади колосников. Водяные колосники охлаждают конструкцию изнутри, не перегреваются и не прогорают.

Котел на угле и дровах

Комбинированные котлы на угле и дровах, как и предыдущая модель изготавливается с двумя видами топок: колосниковой и ОУР мощностью от 0.15 до 2.0 МВт. Данная модель оправдана для котельных, в которых используются оба вида топлива – уголь как основное, дрова, как резервное. Нагревательный котел вырабатывает номинальную заявленную мощность при работе на основном топливе. При работе на резервном топливе - дрова, тепловая мощность будет меньше, поскольку это низкокалорийное топливо с меньшим временем горения. Поэтому для получения требуемой мощности необходима загрузка большего по объему количества топлива.

Котел на естественной тяге для твердотопливной котельной работает на каменном и буром угле. Дымосос для работы котла не требуется. Система регулирования тяги и дутья обеспечивает стабильную работу без дымососа. При запуске теплового котла в переходный период с плюсовой температурой на улице, газы через обводной дымоход свободно выходят из топочной части котла и двигаются по обводному дымоходу, разогревая дымовую трубу. После установления стабильного горения топлива обводной газоход перекрывается, и газы двигаются через конвективные пакеты. Включается тяга, и водогрейный котел на самотяге выходит на полную мощность. Мощность водогрейных котлов без дымососа от 0,15 до 1,45 МВт.

Котел для отходов деревообработки

Котлы на древесных отходах производственные изготавливаются с большой подовой топкой для сжигания сырых и влажных дров, бревен, поленьев, горбыля, щепы, коры, стружки, опилок, досок, поддонов, ДСП, мощностью от 0.15 до 1.5 МВт. Топливо укладывается на под топки. Большой объем топочной камеры позволяет загружать топливо габаритных размеров единовременно. Водотрубные котлы работают на очень влажном топливе, до 60 %. Конструкция топки обеспечивает предварительную сушку сырого топлива. При подовом горении все топливо остается в топке и полностью догорает.

Котел с топкой РПК для отопления предназначен для работы на угле. Стационарный котел с ручной загрузкой топлива. Топливо укладывается на поворотные колосники. Сброс золы и шлака происходит через проем в результате поворота колосников в канал золоудаления. В зависимости от расположения канала золудаления в котельной, возможно расположение поворотных колосников с передним, задним и центральным сбросом.

Котел с топкой ЗП РПК. Транспортером топливоподачи уголь поступает в забрасыватель ЗП, откуда поступает на колосниковую решетку. Нагрузка топки регулируется путем изменения подачи топлива забрасывателем. Горение топлива происходит на колосниках, под которые вентилятором поддува подается воздух. Шуровка слоя выполняется вручную. Сброс шлака происходит через проем, образующийся на топке при повороте опрокидывающихся колосников.

Твердотопливный котел с топкой ТШПМ

Котел с топкой ТШПМ для твердого топлива угля. Топка состоит из топочного блока, установленного на раме, неподвижных и подвижных колосников, бункера подачи топлива, шурующей планки и вентилятора. Топливо подается транспортером углеподачи. Через бункер подачи топливо поступает на шурующую планку и сжигается в слое на водоохлаждаемой трубной колосниковой решетке. Удаление шлака с колосниковой решетки происходит за счет движения шурующей планки.

Котел с топкой ТЛПХ. Уголь поступает в бункер топки транспортером, затем самотеком распределяется по движущейся колосниковой решетке. Количество подаваемого топлива регулируется изменением скорости движения колосникового полотна. Необходимо организовать непрерывную подачу воздуха под колосниковую решетку при помощи вентилятора и воздушных шиберов для избежания спекания слоя топлива и деформации колосников. Удаление шлака производится за счет движения колосникового полотна в канал шлакозолоудаления.

Автоматические котлы работают на угле, пеллетах, опилках, щепе. Автономные котлы производятся с ретортной, вихревой и плунжерной топкой. Все рабочие процессы автоматизированы - подача топлива, горение, безопасность.

Котел на пеллетах водогрейный

Ретортные котлы изготавливаются угольные и пеллетные мощностью от 0.15 до 0.6 МВт. Ретортная горелка устанавливается в центр отопительного котла. Топливо располагается на колосниковой решетке ретортной горелки. Выгоревший и охлажденный шлак постепенно вытесняется и сбрасывается с краев колосниковой решетки новой поступающей из центра колосниковой решетки порцией топлива. Сброшенный с краев колосников шлак накапливается в зольном коробе. Из зольного короба шлак удаляется вручную или при помощи шнека, соединяющий зольный короб и внешний зольный ящик.

Вихревые котлы подходят для сжигания очень влажных древесных отходов, таких как опилки, щепа, кора, стружка. Пояс зажигания, выполненный в топке, постоянно поддерживает высокую температуру, за счет чего происходит интенсивная сушка топлива, быстрое зажигание и стабильное горение. К тому же стальной котел с вихревой топкой экономичен в использовании, особенно для деревоперерабатывающих предприятий, т.к отапливаться вы можете непотребными отходами производства. Конструкция топки обеспечивает полное сгорание топлива.

Автоматический котел на щепе
 

Плунжерные котлы с автоматической подачей топлива, работают на щепе, опилках, коре, стружке, в ручном режиме возможно сжигание дров, досок, поддонов и других крупногабаритных отходов. Топливо поступает в бункер и при помощи плунжерного питателя попадает в вихревую топку стационарного котла. Топливо попадает на огнеупорную плиту, на которой происходит его сушка и подогрев. Предварительная подсушка позволяет работать с сырыми опилками, без температурных колебаний.

Сжигание дров происходит на водоохлаждаемой решетке с переводом водяного котла в полностью ручной режим работы, либо в качестве закладки дополнительного топлива в процессе основной работы вихревой топки.

Газовые и жидкотопливные котлы работают с длинофакельными блочными отечественными и импортными горелками таких производителей, как EMMA, ILKA, CIB UNIGAS, BALTUR, ECOSTAR, FBR S.R.L. и другими. Наш завод также производит модели котлов для работы на российских горелках БИГ, ГМГ, РМГ, ГГ, РГМГ. Горелка крепится во фронтовой части топочной камеры. Отверстие во фронтальной плите изготавливается под конкретную модель горелки. В заднем экране топки установлен взрывной клапан, предохраняющий конструкцию котлоагрегата от разрушения при возникновении избыточного давления в топке. Регулирование заданных температурных режимов производится в автоматическом режиме, за счет чего обеспечивается эффективное сжигание топлива.

Паровые котлы

Паровые котлы предназначены для получения насыщенного пара. Насыщенный пар применяется в выполнении различных технологических процессов на промышленных предприятиях, строительстве, в сельском хозяйстве и других сферах деятельности. Широкое применение паровых жаротрубных котлов обусловлено тем, что котлы имеют высокий коэффициент полезного действия, использование пара не наносит вреда окружающей среде, агрегаты выводятся очень быстро на номинальную мощность, безопасно, имеет долгий срок службы. Котлоагрегаты низкого давления не требует регистрации в органах Госгортехнадзора.

Конструкция Производительность Топливо Температура Давление
Жаротрубный 300 - 2500 уголь, дрова, газ, дизель, мазут, отработка
  • 115 °C
  • 130 °C
  • 170 °C
  • 0.07 МПа
  • 0.17 МПа
  • 0.9 МПа
Барабанный 1000 опилки, щепа, кора, стружка (в ручном режиме дрова и крупногабаритные отходы древесины)
  • до 170 °C
  • до 0.9 МПа

Паровые жаротрубные котлы представляют собой горизонтальную конструкцию и состоят из двух стальных цилиндров разного диаметра вставленные один в другой и соединенные между собой фланцами и паросборником. В принцип работы парового котла положен теплообмен между дымовыми газами и водой. Пар, собираясь в верхней части котла, попадает в паросборник и затем по паропроводам подается потребителю. Для управления и защиты парового цилиндрического котла и вспомогательного оборудования предусмотрены автоматизация котла пульт управления и контрольно-измерительные приборы, которые сигнализируют об отклонениях в работе оборудования.

Угольные модели

Паровой газовый котел

На фронтовой плите имеется дверка для загрузки топлива. В нижней части топочной камеры укладываются колосники, на которых происходит горение топлива. К плите крепятся воздуховод и вентилятор для подачи воздуха в топку. Продукты сгорания выводятся чрез дымовую трубу. В основании дымовой трубы установлен предохранительный клапан.

Модели на газообразном и жидком топливе

К фронтовой плите котельного блока крепится горелка для подачи топлива в топку котла через амбразуру. Газовый и жидкотопливный паровой котел может работать с длинофакельными горелками различных производителей – отечественными EMMA и импортными UNIGAS, BALTUR, ECOSTAR, FBR S.R.L., в качестве топлива может применяться природный газ низкого и среднего давления, а также сжиженный газ и дизельное топливо. Мазутные котлы комплектуются горелкой ILKA.

Модель на опилках и древесных отходах

Паровой котел на твердом топливе опилках промышленный

Котел паровой работает на щепе, стружке, опилках и древесных отходах высокой влажности в полностью автоматическом режиме. Автоматика осуществляет автоматический розжиг, запуск, работу и остановку котла, подачу топлива с контролем производительности по заданной температуре теплоносителя. Подача воздуха осуществляется в зависимости от объема поданного древесного топлива. В теплогенераторе предусмотрена автоматическая система пожаротушения в случае воспламенения топлива в топливопроводе.

Вихревой режим горения исключает механический недожег, топливо полностью сгорает в топке. Конструкция топки позволяет работать с влажным топливом до 60%. Конструкция бункера под древесное топливо и узел соединения со шнековым питателем позволяет полностью опорожнять бункер за счет питателя топлива. В конструкции шнекового питателя дополнительно предусмотрено воздушное охлаждение выходного узла, что препятствует возможности воспламенения топлива в питателе и увеличивает надежность работы.

Котельно вспомогательное оборудование
Транспортер ТС 2-30 для котлов

Транспортеры топивоподачи шлакозолоудаления применяется в механизированных котельных с паровыми и водогрейными котлами для подачи топлива в бункеры топок и удаления золы и шлака. Зола и шлак скребковым транспортером перемещается при помощи движущихся скребков по неподвижному желобу в бункер золы и шлака или отвал. Топливоподача скребковая состоит из привода, натяжной, приводной, прямолинейных секций, поворотных секций, скребковой цепи. Путем изменения количества прямолинейных секций и применением поворотных секций транспортера топливоподачи имеется возможность создавать различную траекторию с углом перегиба 30 °.

Бункер топлива применяется в котельных с механизированной подачей топлива в топку котла. Бункер топлива, объем и его конструкция рассчитывается в зависимости от производительности котлов и схемы котельной.

Золоуловители и циклоны устанавливаются в твердотопливных котельных для отчистки дымовых газов от золы.  Это уменьшает загрязнение атмосферного воздуха, а также повышает надежность эксплуатации дымососов, так как снижается их золовой износ.

Автоматика используется с целью управления котлом, вспомогательным оборудованием и котельной в целом. Автоматическое управление включает дистанционный контроль следующих узлов: паровые и водогрейные котлы, насосная группа, топливоподача, шлакоудаление, вентиляционные установки.

Производство золоуловителей ЗУ 0.8

Горелки российского и импортного производства применяются с промышленными газовыми и жидкотопливными водогрейными и паровыми котлами. Горелки подают топливо в топочную камеру, где происходит его сжигание и нагрев теплоносителя. Блочная горелка осуществляет сжигание топлива, изменяет режим горения, обеспечивает поддержание в контуре котла необходимую температуру воды. Диапазон температуры воды в контуре агрегата задается на пульте управления. При достижении крайних значений автоматически осуществляется включение и выключение горелки.

Насосы предназначены для перекачивания питьевой, чистой воды, воды производственно-технического назначения, для заполнения котла водой, для пополнения объема теплоносителя в контуре, для обеспечения постоянной циркуляции воды в тепловой сети.

Дымососы и вентиляторы обеспечивают подачу воздуха в топку и движение продуктов сгорания - газов по газоходам котла, а также удаление их в атмосферу.

Дымовые трубы предназначены для вывода продуктов сгорания от котлов и модульных котельных, работающих на всех видах топлива. Вместе с ними через трубу удаляются дым, сажа, пепел и копоть. Ещё одним предназначением дымовых труб является обеспечение нормальной тяги в котле.

Водоподготовка предназначена для фильтрации воды перед подачей ее в паровой котел или для подпитки водогрейных котлов в отопительных котельных. Обработка воды, поступающей из природного водоисточника, необходима для приведения её качества в соответствие с необходимыми требованиями для предотвращения образования на трубопроводах, теплообменниках, внутренних поверхностях водогрейных котлов минеральных отложений.

Установка котлов и котельного оборудования
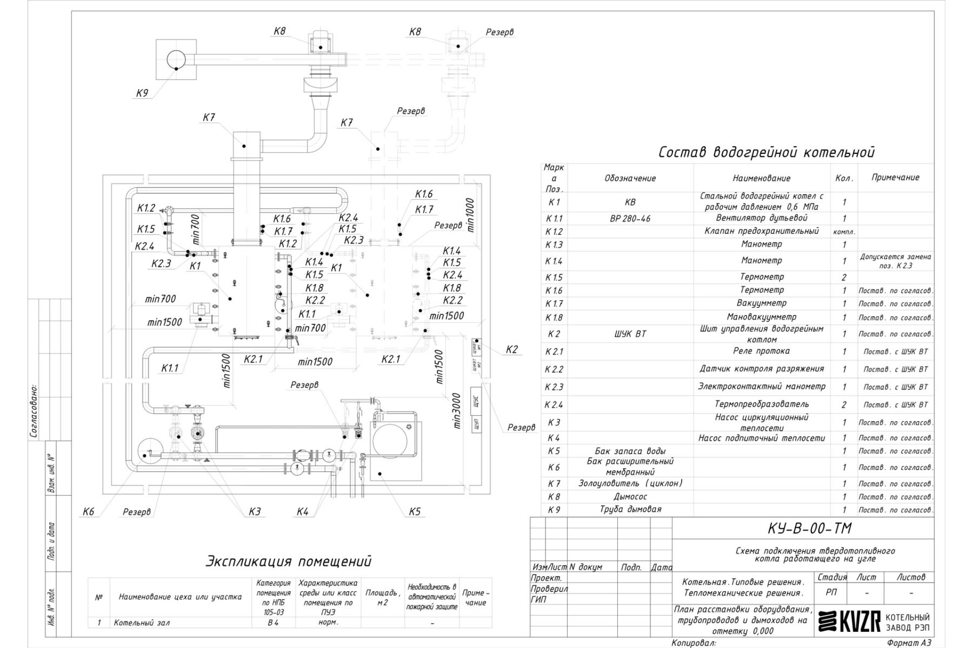
План расстановки котельного оборудования, трубопроводов и дымоходов в котельной

Монтаж модульной котельной производится в следующей последовательности: на месте монтажа блоки собираются в единую конструкцию на фундаменте, производится стыковка внутренних трубопроводов, соединяются контрольно-измерительные приборы и автоматика между блоками, монтируется дымовая труба и к ней подсоединяется внешний газоход, подключается вода, канализация, электричество.

Монтаж котлов в котельной производится на специально подготовленную ровную поверхность, где он закрепляется анкерными болтами. Далее подсоединяется по воде, устанавливается запорная арматура на подводящем и отводящем трубопроводе, устанавливаются предохранительные клапаны, дренажи, воздушники и контрольно измерительные приборы. В воздушный короб по месту врезается вентилятор, монтируется газоход. 

Для того чтобы купить котлы и котельное оборудование в Нарьян-Маре, можно оформить заявку в отделе сбыта по телефону 8-800-700-0643 или оформить заявку онлайн. Наши менеджеры дадут консультацию по подбору вспомогательного оборудования для выбранных вами моделей и рассчитают стоимость доставки к населенному пункту.